Na sprzedaż – 2-pokojowe mieszkanie z tarasem i miejscem postojowym | ul. Dąbrowa 17A, Bydgoszcz
Na sprzedaż funkcjonalne mieszkanie PEŁNA WŁASNOŚĆ ! o powierzchni 41,81 m² (zgodnie z księgą wieczystą, wraz z pomieszczeniem przynależnym – piwnicą), położone na parterze kameralnego, zadbanego bloku na spokojnym osiedlu z kontrolowanym dostępem (furtka do klatki). Dodatkowym atutem nieruchomości jest taras do własnej aranżacji, który daje możliwość stworzenia przytulnej strefy relaksu według własnego pomysłu.
To idealna propozycja zarówno dla singla, pary, jak i osób szukających wygodnego lokalu bez barier architektonicznych.
Najważniejsze atuty nieruchomości
-
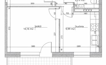
Powierzchnia: 41,81 m² (z piwnicą)
-
Taras do własnej aranżacji – dodatkowa przestrzeń do wypoczynku
-
Przemyślany układ pomieszczeń – każde pomieszczenie oddzielne
-
Możliwość połączenia kuchni z salonem – opcja stworzenia nowoczesnej, otwartej przestrzeni dziennej
-
Okna PCV we wszystkich pomieszczeniach
-
Rolety dzień-noc w każdym oknie
-
Parapety z konglomeratu w delikatnym, beżowym odcieniu
-
Stan mieszkania: dobry – do odświeżenia lub aranżacji według własnych potrzeb
-
Parter + winda z poziomu -1 – wygodny dostęp do piwnicy bez pokonywania schodów
-
Indywidualne miejsce postojowe – naprzeciwko wejścia do klatki, dostępne wyłącznie dla właściciela lokalu
Budynek i osiedle
Blok wyposażony w windę, zadbane części wspólne oraz spokojne sąsiedztwo. Wejście do budynku zabezpieczone – dostęp tylko dla mieszkańców. Kameralne osiedle zapewnia komfort i poczucie prywatności.
Lokalizacja
Nieruchomość znajduje się w dobrze skomunikowanej części miasta, z łatwym dostępem do sklepów, punktów usługowych, terenów zielonych oraz komunikacji miejskiej. Lokalizacja łączy wygodę codziennego życia z ciszą osiedlowej zabudowy.
Cena i opłaty:
380 zł - czynsz do wspólnoty mieszkaniowej przy 1 os
419 000 zł – mieszkanie z pomieszczeniem przynależnym
25 000 zł – indywidualne miejsce postojowe (zakup obligatoryjny)
Po więcej informacji zapraszam do kontaktu -Agnieszka tel 792212211
Jesteśmy pewni, że zaufają Państwo Naszemu doświadczeniu. Jesteśmy członkiem Polskiej Federacji Rynku Nieruchomości oraz Stowarzyszenia Profesjonalistów w Obrocie Nieruchomościami Pomorza i Kujaw - nr licencji 24241.
WSPÓŁPRACUJEMY: Z ekspertami finansowymi w zakresieKREDYTÓW HIPOTECZNYCH oraz KANCELARIAMI NOTARIALNYMI.
Nie ma jednego, najlepszego i idealnego kredytu hipotecznego. Każdy z nas potrzebuje innego, dopasowanego produktu. Zadbamy o to, aby z przedstawionych ofert różnych banków mogli Państwo wybrać tę, najbardziej odpowiednią i spełniającą Państwa oczekiwania.

